大上實業總結人造草門球場工程建設施工標準
時間: 2022-08-25 09:31
瀏覽次數:
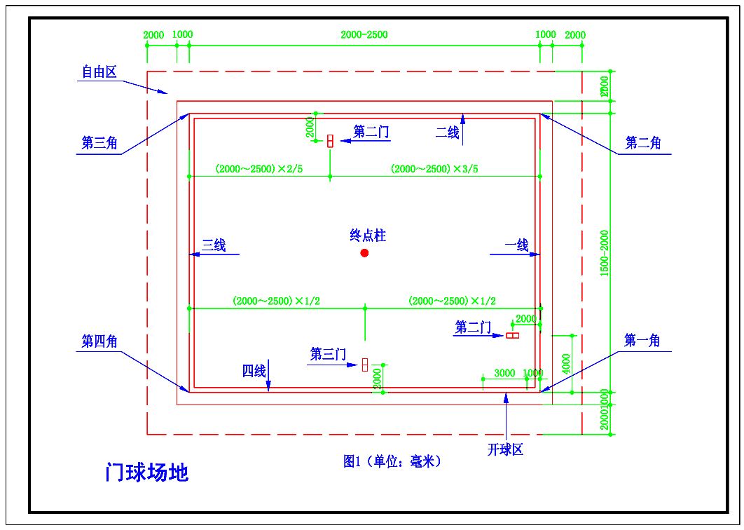
標準門球場尺寸要求:

1、比賽線長20-25米,寬15-20米.
2、緩沖區為比賽區每條邊外延1m(發球區在這1m范圍內)
3、輔助區為緩沖區外每條邊外延1m以上(用于放置計分牌及場地座椅)。
4、比賽線及限制線的寬度為1-5cm。
5、不含輔助區的場地最低尺寸為22m*17m=374平米。
6、含輔助區的場地最小標準尺寸為24m*19m=456平米。
7、場地邊緣設高30cm寬20~50cm的擋球墻,內墻立面須粘貼人造草坪或其他彈性材料,以防治球撞擊到墻上對球產生的損壞。
8、球門與終點柱。場地內設三個球門,一個終點柱。球門是由直徑1cm的圓形金屬物做成,高20cm(從地面之上算起)寬22cm。終點柱是由直徑2cm的圓形平頂金屬物制成,高20cm(從地面之上算起),牢固釘入底下。

更多問題,歡迎咨詢
大上實業網站上的負責人
全國范圍承接:各類球場、運動場、透水路面、地坪漆等工程項目!
免費上門勘察、免費設計、免費報價、免費樣品!
業務手機(微信):13590345552
公司客服:0755-84674858
公司地址:深圳市龍崗區平湖街道平湖社區鳳凰大道33號坤宜福苑11號樓310
工廠地址:廣東省東莞市橋頭鎮東山路綜藝高新產業園廠房B棟一樓